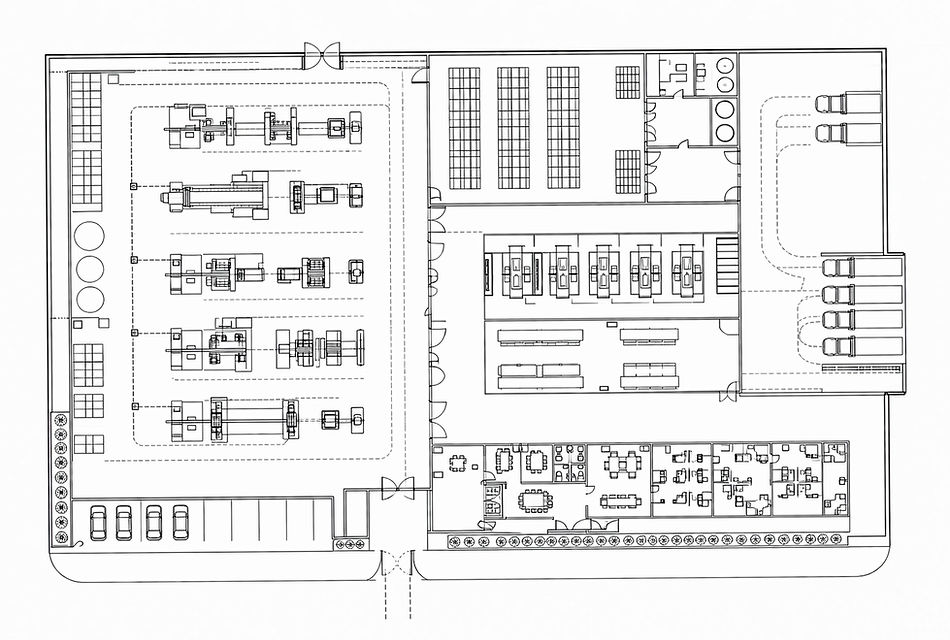
• Levantamento e elaboração de As-Built em planta baixa
  • Desenvolvimento e reorganização de layout fabril
  • Mapeamento de fluxo produtivo
  • Identificação de gargalos operacionais
  • Projetos de tubulação industrial

Realizamos o levantamento completo da fábrica para criar plantas atualizadas (As-Built), mostrando como tudo realmente está no local. Também podemos apenas desenvolver o desenho da fábrica em CAD, organizando o espaço de forma clara e profissional para visualização e uso no dia a dia.

A partir disso, organizamos e melhoramos o layout, reposicionando máquinas e áreas para facilitar o trabalho e aumentar a eficiência. Também analisamos o fluxo de materiais, identificando pontos de atraso e desperdício (gargalos).

Fale conosco Outros canais